Logo emprendimiento

Edificio diseñado por Yacoub, ubicado sobre Avenida 7 e/ 39 y Plaza Olazábal.
El proyecto se distingue por su fachada.
Posee 9 niveles de departamentos y terraza equipada con salón de usos múltiples.
Su ubicación es de carácter estratégico en la ciudad, se encuentra cercano al centro y a pasos de plaza Olazábal.

Avenida 7 y cercanía al centro

Unidades de 1 y 2 ambientes

Plaza Olazábal y Plaza Italia

Materiales nobles y de calidad

Descargar brochure
Imagen

ESTAR COMEDOR

  • Piso porcelanato primera marca.
  • Cielorraso suspendido en yeso.
  • Carpintería DVH laminado asegurando máxima aislación térmica y acústica. Color negro.
  • Paredes interiores enduídas con yeso.
Imagen

COCINA

  • Muebles de cocina completos, bajo mesadas y alacenas de melamina color blanco con núcleo MDF.
  • Cielorraso suspendido en yeso.
  • Mesada color gris.
  • Grifería monocomando FV o similar alta prestación.
  • Bacha marca Johnson o similar. Revestimiento porcelanato sobre mesada.
Imagen

DORMITORIO

  • Pisos de PVC resistentes al agua y humedad, símil madera.
  • Cielorraso de yeso.
  • Carpintería DVH laminado, asegurando máxima aislación térmica y acústica.
  • Frente de placard corredizo de melamina.
Imagen

BAÑO

  • Revestimiento porcelanato
  • Cielorraso suspendido en yeso
  • Artefactos sanitarios Ferrum o similar
  • Grifería marca FV o similar, alta prestación. Cierre cerámico
  • Vanitory de diseño a medida con bacha Roca o similar, primera marca
  • Receptáculo para ducha con desagüe lineal de categoría
  • Flor de ducha premium de gran difusor
Imagen

BALCONES

  • Pisos cerámicos de alto tránsito.
  • Luces led.
Imagen

DETALLES GENERALES

  • En palieres y espacios comunes, pisos de porcelanato alto tránsito, primera categoría.
  • Preinstalaciones de aire acondicionado en todos los ambientes según cálculo de matriculado.
  • Puerta principal con gran barral de acceso. Herrajes premium de diseño.
  • Cielorraso suspendido de yeso en cocina y baño. Tradicional. Malla (alta durabilidad). En su terraza contendrá un salón de usos múltples.

Planos

Frente

Contrafrente

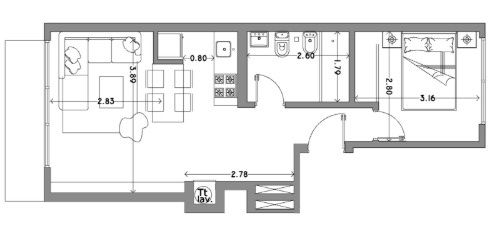
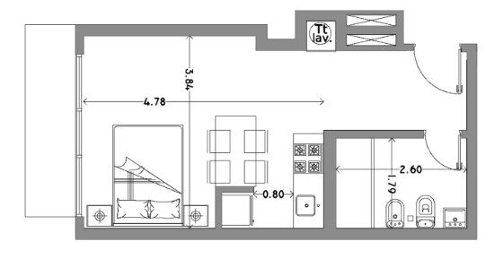
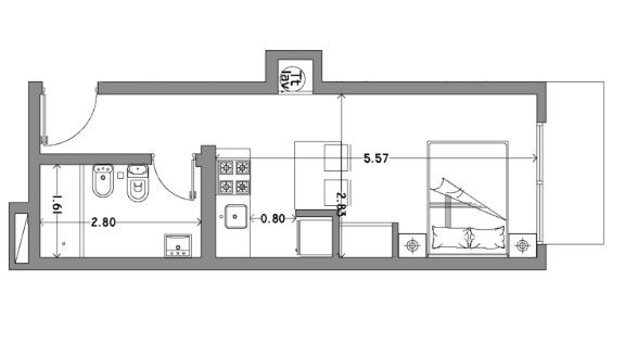
1 Ambiente
1 Ambiente
2 Ambientes
1 Ambiente
1 Ambiente
2 Ambientes
Imagen 1

1 Ambiente

35 m2

Imagen 1

2 Ambientes

48 m2

Imagen 1

1 Ambiente

31 m2

Imagen 1

2 Ambientes

46 m2

Contáctate con nuestros profesionales para saber más sobre este proyecto

Yacoub Ventas